CLOSE
SITE MAP
イノベーションが
生まれる「まち」。

会場案内

4号館 バズホール

最大350名収容、天井高10mを誇る当施設のメインホールです。2ヶ国語対応の同時通訳ブースや16,000ルーメンの高輝度プロジェクター、225インチスクリーンを備え、国際会議や学術会議、式典、株主総会などのフォーマルな会合からアイデアソンやワークショップなどの用途にもご利用いただいています。
また、1,500W電源(100V15A)が22回路敷設されているため、機器展示会場としても適しています。

主なご利用例

講演会、同時通訳会議、パネルディスカッション、就職説明会、会社説明会、社員研修会、方針発表会、入学/検定試験、展示商談会、ギャラリー、学会のメインホール/企業展示等

詳細情報

エリア 4号館
面積 365㎡(控室約24㎡つき)
収容人数 スクール形式250席
シアター形式350席
天井高 約10m
設備 2ヶ国語同時通訳ブース併設
演台:1台
看板バトン:6,010mm(直径46mm)
電源:1,500W(100V15A)×22回路
ホワイトボード:1台
インターネット:有線 / Wi-Fi
ステージ:W8,500×D3,200×H450mm

設備詳細

単位:円(税込)
プロジェクター 16,000ルーメン 38,500円
スクリーン W5,000xH,4500mm
225インチ (16:10)
常設無料
ワイヤレスマイク 4本まで 2,750円/本
有線マイク 8本まで 2,750円/本
  1. その他の機器・設備についてはこちら

料金

単位:円(税込)
  全日
9:00~17:00
午前
9:00~12:00
午後
13:00~17:00
夜間
18:00~21:00
1時間当り
時間外割増
平日 335,500 185,900 223,300 260,700 74,800
土日祝 419,100 233,200 279,400 326,700 93,500

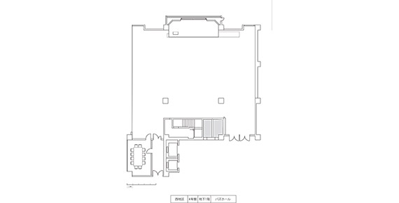
レイアウト図

  • 画像をクリックするとPDFファイルで開きます。

広さが似ている会場

一緒におすすめの会場

会場一覧

ホール・会議室に関するお問い合わせ

TEL : 075-322-7888 FAX : 075-314-2968

e-mail : convention@krp.co.jp
お電話の受付時間:平日 9:00~17:40 (土日祝・弊社休業日を除く)
京都リサーチパーク株式会社 事業推進部 MICE推進チーム