CLOSE
SITE MAP
イノベーションが
生まれる「まち」。

会場案内

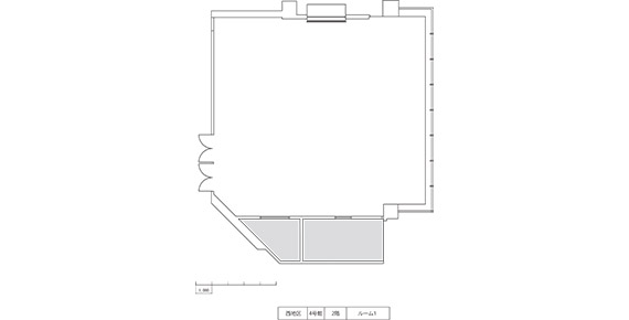
4号館 ルーム1

2ヶ国語同時通訳ブース、7,000ルーメンの高輝度プロジェクター、140インチスクリーンを備えた最大170名規模の会場です。国際会議やセミナー・研修会、筆記試験、各種会合の他、バズホールのサテライト会場としてもご利用いただけます。また、隣接するルーム6と内扉で繋がっているため、講演会場と講師控室として、2室組み合わせてのご利用が便利です。

主なご利用例

講演会、同時通訳会議、会社説明会、社員研修会、方針発表会、企画/営業会議、組合総会、役員会、理事会など各種会合、検定試験、機器展示・商談会、学会の分科会/ポスター展示等

詳細情報

エリア 4号館
面積 168㎡
収容人数 スクール形式120席
シアター形式170席
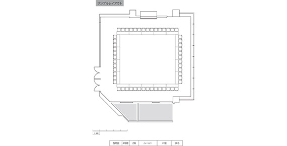
ロ型54席
天井高 2.5m
設備 2ヶ国語同時通訳ブース併設
電源:1,500W(100V15A)×4回路
ホワイトボード:1台
インターネット:有線 / Wi-Fi

設備詳細

単位:円(税込)
プロジェクター 7,000ルーメン 27,500円
スクリーン W3,099xH1,743mm
140インチ
常設無料
ワイヤレスマイク 4本まで 2,750円/本
有線マイク 8本まで 2,750円/本
  1. その他の機器・設備についてはこちら

料金

単位:円(税込)
  全日
9:00~17:00
午前
9:00~12:00
午後
13:00~17:00
夜間
18:00~21:00
1時間当り
時間外割増
平日 136,400 75,900 90,200 単独での貸出は
しておりません
30,800
土日祝 170,500 96,800 113,300 39,600
  • バズホールを同時にご利用いだだく場合は利用可能です。

レイアウト図

  • 画像をクリックするとPDFファイルで開きます。

広さが似ている会場

一緒におすすめの会場

会場一覧

ホール・会議室に関するお問い合わせ

TEL : 075-322-7888 FAX : 075-314-2968

e-mail : convention@krp.co.jp
お電話の受付時間:平日 9:00~17:40 (土日祝・弊社休業日を除く)
京都リサーチパーク株式会社 事業推進部 MICE推進チーム