CLOSE
SITE MAP
イノベーションが
生まれる「まち」。

会場案内

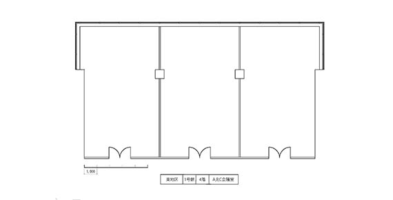
1号館 A,B,C会議室

WEB予約に対応した20〜40名規模の会場です。4,600ルーメンの天井吊下プロジェクターと100インチスクリーン、マイク1本を常設しており、お持込みのPCを接続するだけですぐに会議を開始していただけます。セミナーや研修会、各種会合などのご利用に。また、同フロアに位置するサイエンスホールやG会議室と組み合わせて、分科会、委員会、事務局、スタッフ控室などのご利用にも適しています。

主なご利用例

講演会、会社説明会、社員研修会、方針発表会、企画/営業会議、総会、役員会、理事会など各種会合、検定試験、機器展示・商談会、学会の分科会/ポスター展示/控室等

詳細情報

エリア 1号館
面積 61㎡
収容人数 スクール形式42席
シアター形式56席
口型30席
天井高 2.5m
設備 電源:1,500W(100V15A)×3回路
ホワイトボード:1台
インターネット:有線 / Wi-Fi
プロジェクター
スクリーン
ポータブルアンプ+マイク1本

料金

単位:円(税込)
  全日
9:00~17:00
午前
9:00~12:00
午後
13:00~17:00
夜間
18:00~21:00
1時間当り
時間外割増
平日 44,000 25,300 29,700 単独での貸出は
しておりません
9,900
土日祝 53,900 30,800 37,400 12,100
  • サイエンスホールを同時にご利用いだだく場合は利用可能です。

レイアウト図

  • 画像をクリックするとPDFファイルで開きます。

広さが似ている会場

会場一覧

空き状況のご確認・ご予約

ホール・会議室に関するお問い合わせ

TEL : 075-322-7888 FAX : 075-314-2968

e-mail : convention@krp.co.jp
お電話の受付時間:平日 9:00~17:40 (土日祝・弊社休業日を除く)
京都リサーチパーク株式会社 事業推進部 MICE推進チーム