CLOSE
SITE MAP
イノベーションが
生まれる「まち」。

会場案内

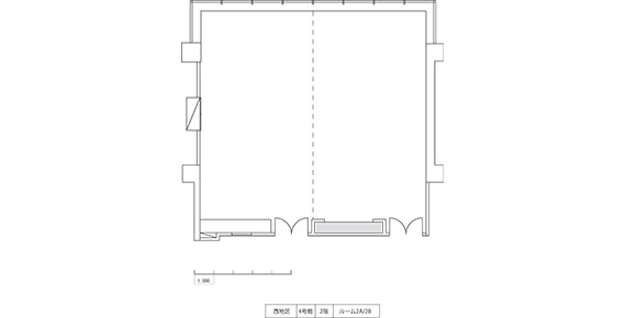
4号館 ルーム2A/2B

4,600ルーメンプロジェクターと100インチスクリーンを備えており、30〜60名規模のセミナー・研修会、筆記試験、各種会合など、様々な用途でご利用いただけます。同じフロアに位置するルーム1と組み合わせて、世話人会、事務局、スタッフ控室などのご利用にも適しています。

主なご利用例

講演会、社員研修会、方針発表会、企画・営業会議、組合総会、役員会、理事会など各種会合、検定試験、機器展示・商談会 学会の分科会/ポスター展示等

詳細情報

エリア 4号館
面積 73㎡
収容人数 スクール形式48席
シアター形式64席
ロ型36席
天井高 2.5m
設備 電源:1,500W(100V15A)×2回路
ホワイトボード:1台
インターネット:有線 / Wi-Fi

設備詳細

単位:円(税込)
プロジェクター 4,600ルーメン 6,050円
スクリーン W2,200×H1,200mm 100インチ 2,750円
マイク ポータブルアンプ+マイク1本 6,600円
  1. その他の機器・設備についてはこちら

料金

単位:円(税込)
  全日
9:00~17:00
午前
9:00~12:00
午後
13:00~17:00
夜間
18:00~21:00
1時間当り
時間外割増
平日 56,100 30,800 37,400 単独での貸出は
しておりません
13,200
土日祝 69,300 38,500 46,200 15,400
  • バズホールを同時にご利用いだだく場合は利用可能です。

レイアウト図

  • 画像をクリックするとPDFファイルで開きます。

広さが似ている会場

会場一覧

ホール・会議室に関するお問い合わせ

TEL : 075-322-7888 FAX : 075-314-2968

e-mail : convention@krp.co.jp
お電話の受付時間:平日 9:00~17:40 (土日祝・弊社休業日を除く)
京都リサーチパーク株式会社 事業推進部 MICE推進チーム