CLOSE
SITE MAP
イノベーションが
生まれる「まち」。
NEWS ROOM

ニュースルーム

2025/01/23

京都リサーチパークで実証実験フィールドの提供を開始 ~街全体が実証フィールド。ビジネス拠点で未来を創る実証実験大募集!~

【PDFを見る】

京都リサーチパーク株式会社(代表取締役社長:門脇あつ子 以下KRP)が運営する京都リサーチパーク(以下、KRP地区)にて、企業・団体向けに実証実験フィールドの提供を開始します。KRP地区が有する充実した施設と人の集積を活かし、実証実験の機会や場の提供に取り組むことで、京都からの新ビジネス・新産業の創出に貢献します。

画像1.png

実証実験のフィールドの提供 | 京都リサーチパーク

https://www.krp.co.jp/testbed/

■概要
KRP地区は、約59,000㎡の敷地に18棟の建物が立ち並ぶ一大ビジネス拠点です。ここには 5106000人が集い、新事業・研究開発に向けたさまざまな挑戦が日々行われています。オフィスやラボ、商業店舗や貸し会議室を備えるビル群、緑豊かな屋外共用スペースなど、多彩な環境を有するKRP地区を実証フィールドとして無償提供し、新しい技術やサービスの開発に向けた実証実験を大募集します。企業規模や業種に関わらず、仮説検証や社会実装の検証の機会として、ぜひKRP地区を最大限に活用してください。
※実証フィールドは原則無料ですが、機器の設置および維持管理、撤去等に係る費用は実証実験実施者にてご負担ください。また、実証実験に使用する各種エネルギー料金のご負担についても、ご相談させていただく場合がございます。

 ■狙い
KRP地区が開設35周年を迎える本年、新技術・新サービスの開発に向けたさまざまな取り組みに対して、KRP地区全体をフィールドとして提供し、実証実験を積極的に受け入れることを決定いたしました。この取り組みにより、KRP地区において実証実験が活発に行われ、革新的な技術やアイデアがあふれ、それらを体感するために多くの方が集い、KRP地区の入居企業さまと実証実験を行う企業・団体など、さまざまな出会いや未来の可能性が創出されることを目指します。私たちは実証実験のフィールド提供を通じて新たな未来を創る挑戦を応援し、京都からの新ビジネス・新産業の創出に貢献します。

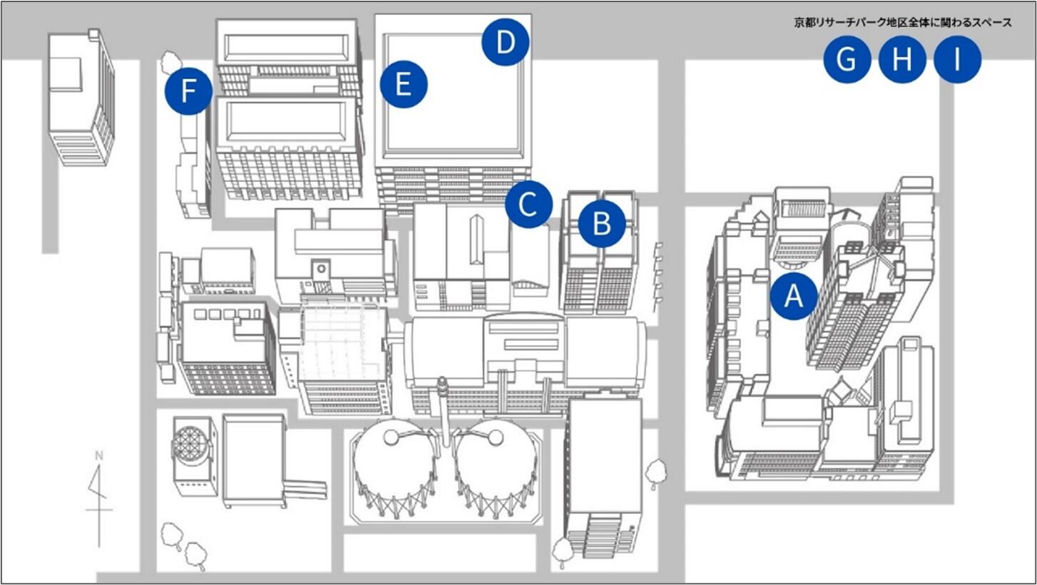
■実証フィールドのご紹介
京都リサーチパーク地区内には、さまざまな環境下での実証実験を行うフィールドをご用意しております。以下の記載以外にもさまざまなフィールドがあり、実験内容に適したスペースをご提供します。
※以下は一部のご紹介です。ただ、実証内容によっては、提供不可となる場合もございます。

画像2.jpg

画像3.png

■募集内容
1)募集概要
以下にあてはまる内容の実証実験を募集します。
・独自技術を活用して社会課題解決や新たな価値の創造に挑戦する実証実験であること
・京都リサーチパーク地区内で実施可能であること
2)募集領域以下の技術分野を重点領域として募集しています

画像6.png

3)応募資格
京都に拠点があるもしくは、京都に拠点設置の予定がある企業・団体に限ります。

 ■応募方法
以下URLより、エントリーシートをダウンロードし、必要事項をご記載のうえ、サイト内記載のメールアドレス宛までご送付をお願いいたします。
【詳細URL】 https://www.krp.co.jp/testbed/
※応募前に、詳細URL内「留意事項」をご一読ください。