ライフサイエンス研究センター



JR鶴見線鶴見小野駅から徒歩7分の立地。130㎡~1,200㎡の部屋を提供。給排水、給排気、電気容量増設等フレキシブルに整備可能。京浜臨海部ライフイノベーション国際戦略特区の末広区域に位置し理化学研究所横浜キャンパスなどの世界トップクラスの研究開発拠点が集積。
施設概要
施設名:ライフサイエンス研究センター
運営者:大栄不動産株式会社
郵便番号:230-0045
住所:神奈川県横浜市鶴見区末広町1-1-43
アクセス:JR鶴見線鶴見小野駅から徒歩7分
電話番号:03-3244-0622
Webサイト:https://www.daiei-re.jp/building/rent-detail246/
運営者:大栄不動産株式会社
郵便番号:230-0045
住所:神奈川県横浜市鶴見区末広町1-1-43
アクセス:JR鶴見線鶴見小野駅から徒歩7分
電話番号:03-3244-0622
Webサイト:https://www.daiei-re.jp/building/rent-detail246/
ラボの広さ
| 1名から使えるシェアラボ | × |
|---|---|
| 60㎡以下 | × |
| 60㎡~100㎡ | × |
| 100㎡~1000㎡ | ○ |
| 1000㎡超 | ○ |
ラボの設備
| 給排水 | ○ |
|---|---|
| 排気ダクト | ○ |
| ガス | ○ |
| 共用実験機器 | × |
| 動物実験室 | × |
| RI実験室 | ×(お客さま負担での整備は可※要相談) |
| CPC室 | ×(お客さま負担での整備は可※要相談) |
| 遺伝子組み換え実験 | P2以下 |
| バイオセーフティレベル | BSL2以下 |
| その他 | 共用部に廃液保管庫あり |
事業支援
| 事業支援 | × |
|---|---|
| 事業支援内容 | 無し |
入居条件
| 審査有 | ○ |
|---|---|
| 共同研究のみ入居できる | × |
| 入居年数に制限有 | × |
| 企業規模等で制限あり | × |
| その他の条件 | 無し |
料金
| 賃料の目安 | 3,630円/㎡~ |
|---|---|
| 敷金の目安 | 月額賃料の12か月分~ |
施設仕様
| 竣工年 | 2001年 |
|---|---|
| 敷地面積(㎡) | 2,901.59㎡ |
| 建物面積(㎡) | 1,484.30㎡ |
| 天井高(mm) | 2,700~4,300mm |
| 床耐荷重(kg/㎡) | 300?500kg/㎡ |
| 電気容量 | 単相100V・200V、三相200V *部屋により利用可能な電気容量は異なります。 |
| セキュリティー | カードキー |
| 駐車場(有無+台数) | 有/24台 |

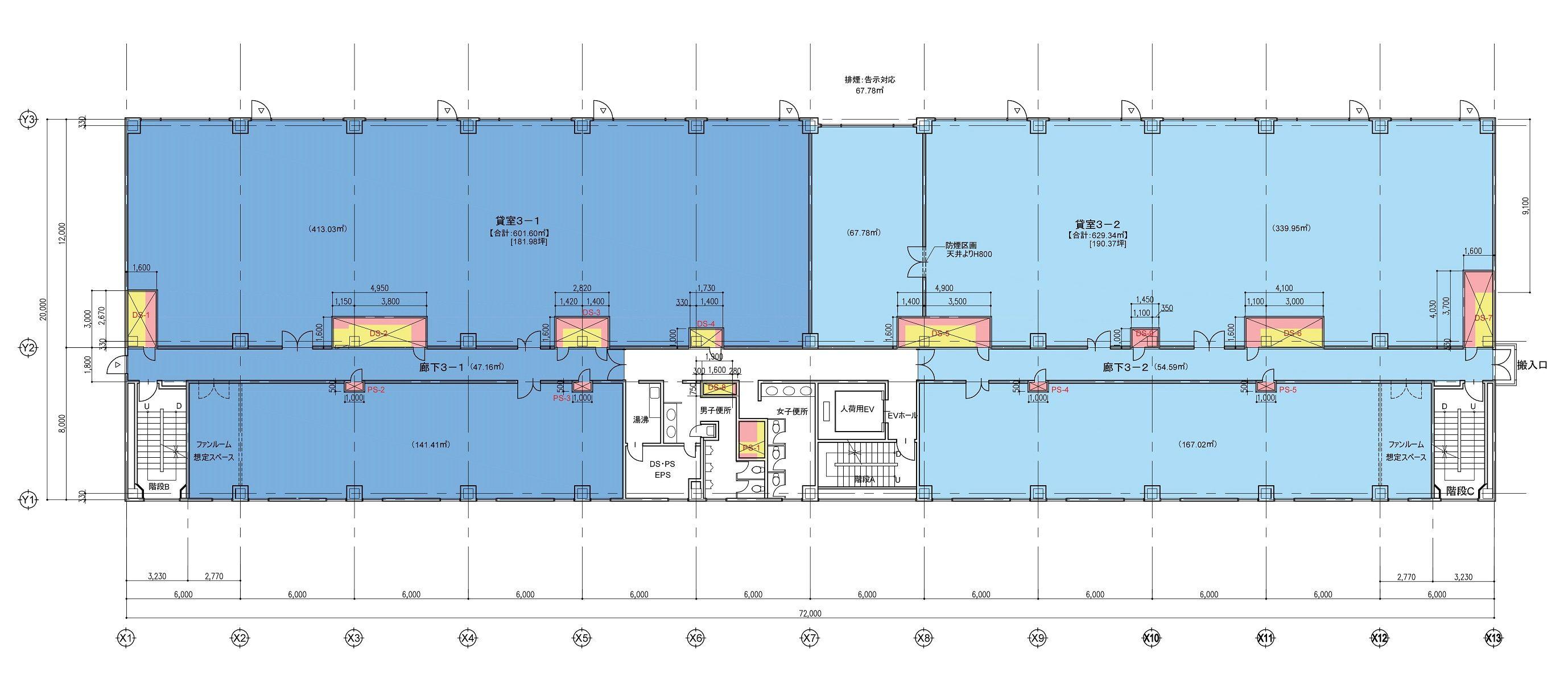
標準階の平面図
お問い合わせ
お問い合わせ先:大栄不動産株式会社ビル事業部
お問い合わせ方法:電話、メール、お問い合わせフォーム
電話番号:03-3244-0622
メール:info-office@daiei-re.jp
お問い合わせフォーム:https://www.daiei-re.jp/contact-form.php?type=building
空室情報:施設までお問合せください。
お問い合わせ方法:電話、メール、お問い合わせフォーム
電話番号:03-3244-0622
メール:info-office@daiei-re.jp
お問い合わせフォーム:https://www.daiei-re.jp/contact-form.php?type=building
空室情報:施設までお問合せください。